
Town of New Paltz Court / Police Station
New Paltz New York
Town of New Paltz Court / Police Station
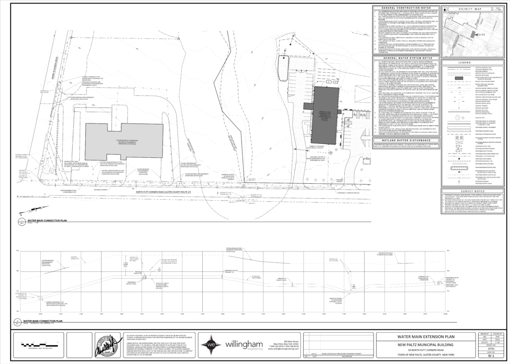
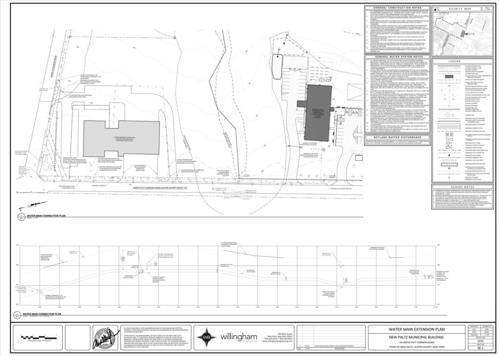
The Town of New Paltz purchased a 8,500 square foot warehouse building on 14 acres for the purpose of converting the building to a two story multiuse municipal building that includes the police station, town court and additional community spaces. Services provided by Willingham & Towne included site/parking design, stormwater management, septic system design, offsite water main extension (+/-1,000 lf extension), landscaping and lighting. Construction administration and inspection services were provided throughout construction to ensure site work was completed properly. The building is currently in operation and serving the Town of New Paltz Police, Court and residents.










