
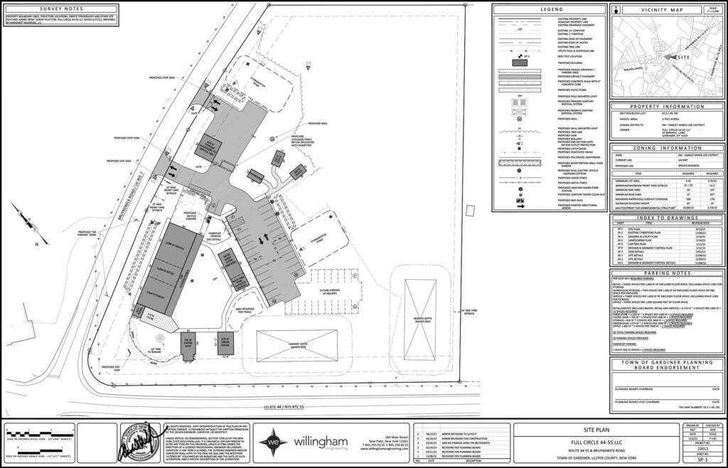
Full Circle
297 Bruynswick Rd. Gardiner, NY
Full Circle
Full Circle is a collective of small, locally owned businesses in the Hudson Valley, located at the corner of Bruynswick Road and Route 44/55 in the Town of Gardiner. The development includes a bakery, community space, greenhouse/shop for artisan food and drinks, trail builders and more. It’s an overall inclusive space to enjoy good food and beverages, classes, events and connect with the community. Willingham and Towne guided the owner through the land development process to bring the project from conception to shovel in the ground. We prepared full civil engineering plans that included stormwater, potable water, sanitary wastewater design, landscaping and lighting. Construction was completed in August 2024.











